Chi tiết bài viết
Bài trí nội thất căn hộ chung cư 90m2
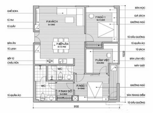
Căn hộ chung cư diện tích 90m2 có 2 mặt thoáng, không gian chung và riêng được tách biệt, diện tích vừa đủ, rộng rãi, thoáng mát.
Căn hộ ban đầu gồm 3 phòng ngủ đã được thiết kế lại để trở thành 1 phòng làm việc và 2 phòng ngủ. Phòng ngủ ở giữa đã được thu hẹp diện tích và biến căn phòng này trở thành phòng làm việc.
Không gian sinh hoạt chung gồm có phòng khách, phòng bếp, phòng ăn và nhà vệ sinh. Bàn ăn được di chuyển ra giữa giúp giao thông đi lại dễ dàng và công việc nội trợ trở nên thuận tiện hơn. Phòng ngủ chính được bố trí những món đồ nội thất cơ bản như giường ngủ, tủ đầu giường, bàn trang điểm.
Cửa ra ban công được làm bằng hệ cửa kính cánh lớn giúp căn phòng luôn tràn ngập ánh sáng. Phòng làm việc được bố trí hệ tủ sách lớn kê sát tường giúp lưu trữ sách hiệu quả, đối diện là bàn làm việc được ưu tiên kê gần cửa sổ mở ra ban công. Phòng ngủ cho khách được bài trí đơn giản với giường ngủ, tủ đầu giường, giá sách và bàn học kê gần cửa sổ.

Sơ đồ thiết kế nội thất căn hộ chung cư diện tích 90m2

Phòng khách thông với phòng bếp và phòng ăn

Ghế sofa chữ L sang trọng, lịch sự

Bộ bàn ăn 6 ghế đơn giản, tiện dụng

Không gian bếp hiện đại, gọn và đầy đủ các tiện nghi

Phòng ngủ chính tràn ngập ánh sáng với cửa sổ lớn

Tủ sách trang nhã, hiện đại

Phòng thay đồ nhỏ gọn

Phòng ngủ nhỏ trẻ trung, hiện đại

Nhà vệ sinh sử dụng gam màu sáng, trẻ trung và hiện đại
